金属加工のエキスパート

天井・壁など内外装の設計から施⼯管理までを⼀貫して⼿がけてきた近藤⾦属⼯業。
⾦属の質感・特性を熟知した設計に加え、⾼度な加⼯成型技術さらには表⾯処理技術を駆使し、建築家の厳しい要求に応え、実現する。

それが私たちの使命です。

会社概要

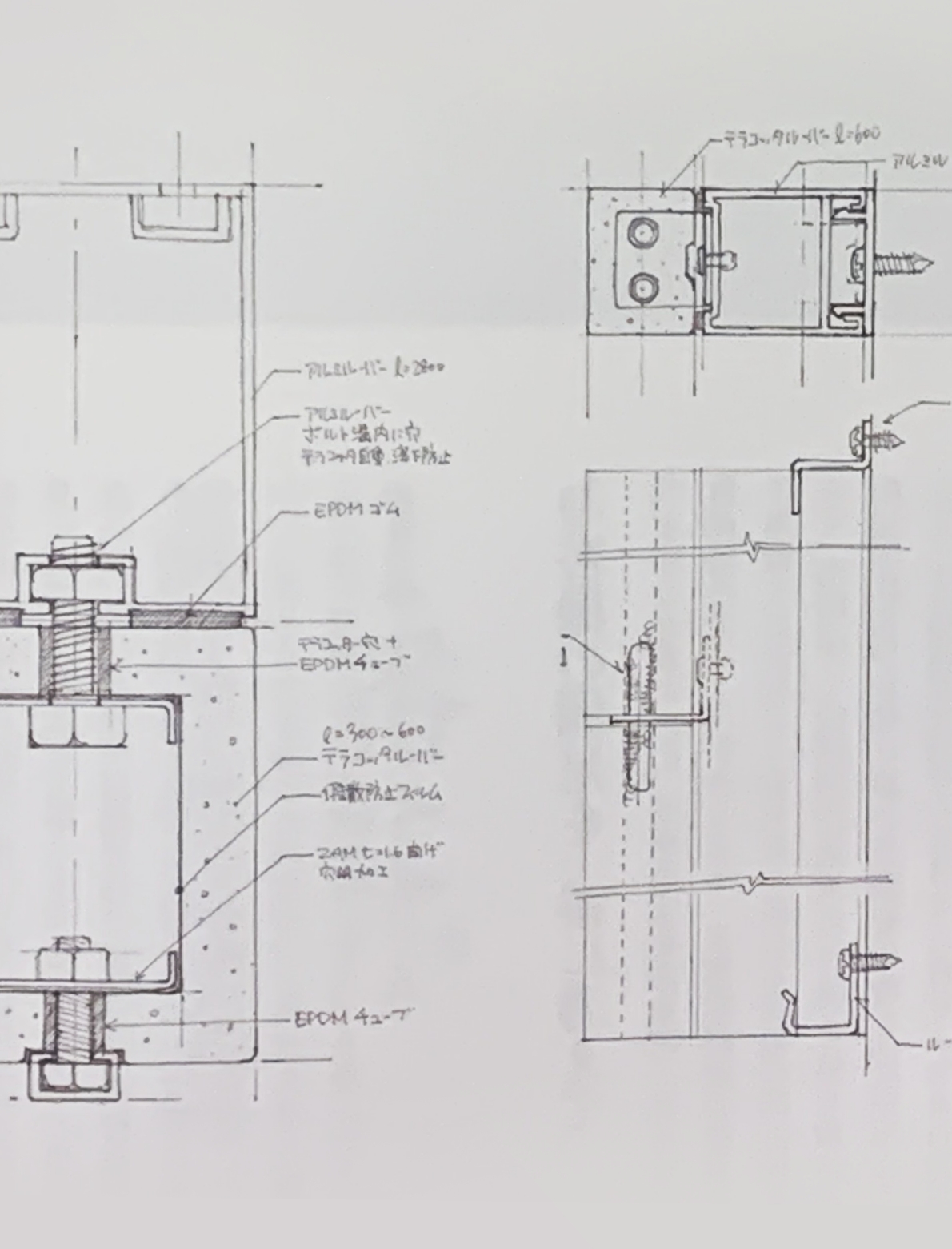
VE提案
VE提案
VE提案

プラスVE提案Value Engineering Proposals

機能性、品質、意匠性を確保しながら
低コストに

過剰品質の適正化、適正素材の見直し、アッセンブリーや加工方法の向上、最適な施工方法。
既存製品からの改善提案や現状の製品形状、材質等を改善するための、提案や改案試作をこれまでに数多く手掛け、ご要望にあった代替案を最適な形でご提案させていただいています。

安全性・強度検討
安全性・強度検討
安全性・強度検討

安全性・強度検討Safety

流行りのデザイン、未来的なデザイン、美しく斬新なデザイン

それらを実現するのに必要なのが安全性の担保です。
当社では強度計算を日々幾度も繰り返して安全性を確認したものを提案しております。

3D設計が標準
3D設計が標準
3D設計が標準
3D設計が標準

3D設計の標準化3D CAD MODELING

BIMへの対応

⼤⼿ゼネコンでも取り組みが進められている BIM での設計。
当社でも2000年頃から三次元設計を取り⼊れ、⼆次元では実現が難しいものでも、3DCADでの設計を⾏うことで実現していきます。

世界の工場と直取引
世界の工場と直取引
世界の工場と直取引

世界の工場と直取引Global Selection

当社の協⼒⼯場は町⼯場から⼤⼿の⼯場まで、国内のみならず、韓国・ベトナム・タイ・アメリカなどにもございます。
各社との⻑きにわたる取引を経て、それぞれの強みを熟知した上で、セレクトしていきます。 各社と直接取引をしているからこそ、タイムリーな情報で製品を実現できます。

実績
実績
実績

WORKS実績